Quartet House
Quartet, 4 modülden oluşan mimarisiyle farklı yaşam senaryolarına uyum sağlayan, iki katlı modern bir aile evi çözümüdür. Farklı oda sayılarına sahip plan alternatifleriyle hem birincil yaşam alanı olarak hem de ikincil (yazlık, kırsal kaçış, yatırım) amaçlarla kullanılabilir.
Modüler sistem sayesinde hızlı kurulum, kaliteli üretim ve sürdürülebilir yaşam avantajlarını bir araya getirirken, geniş cephe açıklıkları ve dış mekân kullanımıyla ferah bir yaşam deneyimi sunar.
Modern çizgileriyle Quartet, yaşamı yeniden kurgulamak isteyenler için yeni nesil bir ev modeli.
Mevcut Boyutlar (Boyutlar kişiselleştirilebilir.)

105 m²
2-5

160 m²
2-5

180 m²
2-5
Boyutunu Seç, Evini Kişiselleştir


| Brüt Alan | 105 m² |
| Ev Tipi | 2+1 |
| Salon | 1 |
| Yatak Odası | 2 |
| Banyo | 2 |
| Modül Sayısı | 2 |
| Taşıyıcı Tır Sayısı | 2 |


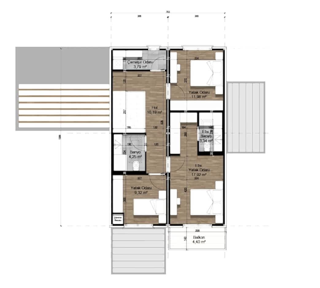
| Brüt Alan | 160 m² |
| Ev Tipi | 3+1 |
| Salon | 1 |
| Yatak Odası | 3 |
| Banyo | 3 |
| Modül Sayısı | 4 |
| Taşıyıcı Tır Sayısı | 4 |


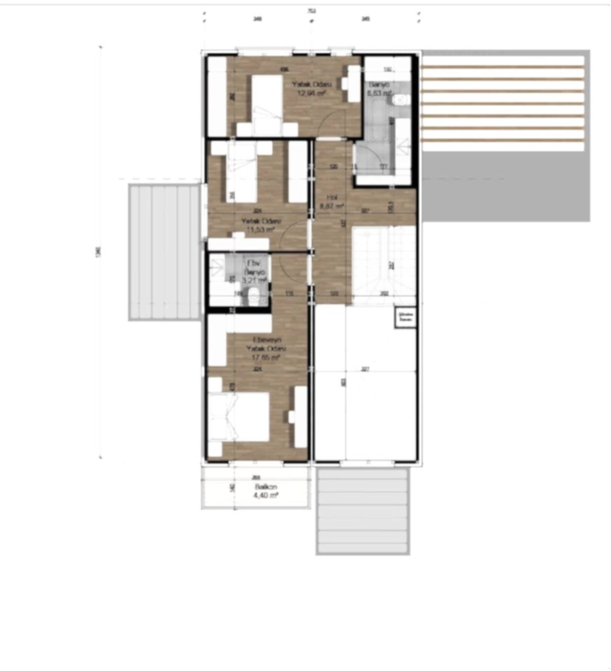
| Brüt Alan | 180 m² |
| Ev Tipi | 4+1 |
| Salon | 1 |
| Yatak Odası | 4 |
| Banyo | 3 |
| Modül Sayısı | 4 |
| Taşıyıcı Tır Sayısı | 4 |












